INCANTO 21

Ubicación
Edo de Mex

Año
2023 - 2024

m2
693.02 m2

Tipo
Residencial

Estado
Desarrollo de Proyecto Ejecutivo

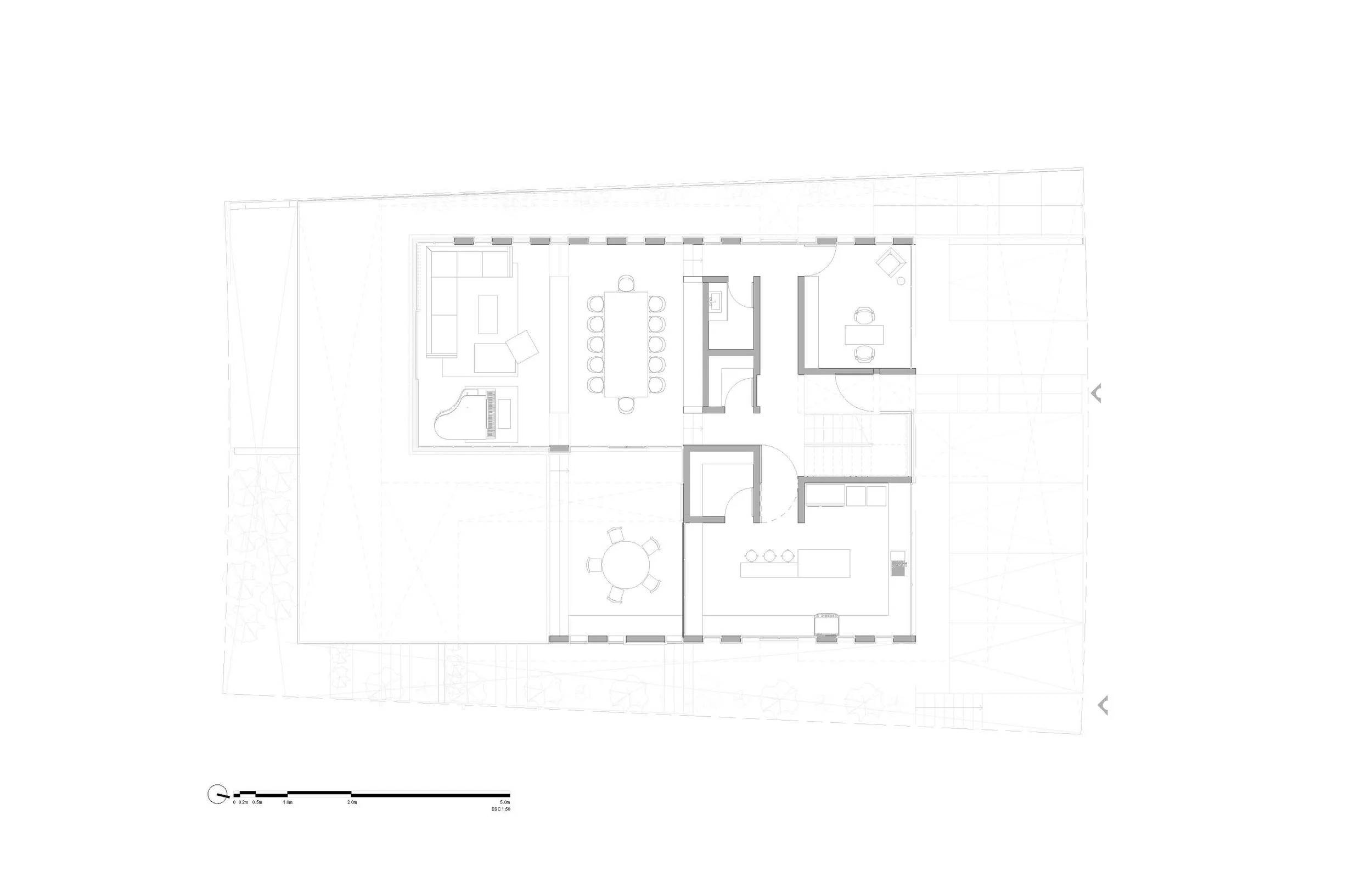
Casa familiar para una familia de 05 integrantes. El concepto adoptado para el desarrollo del proyecto es la levedad, que se busca a través de la materialidad de sus espacios. En planta, se concibe un área abierta y translúcida, permitiendo una total apertura y conexión entre sus espacios, así como con el jardín. Este volumen sirve como basamento de las áreas privadas, caracterizadas por una mayor intimidad en sus volúmenes, los cuales se conforman como bloques a modo de grapa, revestidos por placas que se despliegan a libro abierto. Se busca que cada uno de estos volúmenes, que constituyen el espacio superior, se asemeje a los monolitos de donde se extrae la misma piedra.